
各位朋友大家好,近一段时间我忙于写一些风水理论上的文章,接下来应广大网友和客户的要求,将文章的内容撰写侧重于技术实例方面。希望能让各位爱好风水的朋友,在读过之后能有所收获,做到趋吉避凶。
此户型按上北下南来分析,从整体来看,户型不规则,凹凸的地方太多。风水上讲要的是天圆地方。这就像一个人的整体一样,四肢要健全,不可有缺少,不然就是有缺陷了。
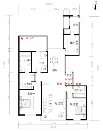
正东方有凹字形的缺陷是不利的。
《易经》上讲东方为震,代表家中的男主人和男孩子,此位置如出现问题则是极为不利的,常住在此地则会在肝、胆、血液和眼睛视力较差,严重的家中留不住男子。不利于家中男孩子的学业和身体健康。
整个户型的西北角方位也有很大的缺陷,此位置也代表家中男主人和男孩子的位置,主要是对男主人的头部、肾脏和事业运产生极为不利,常住此位的人,超过三年时间的夫妻多有不和、分离之事发生,而且对男主人来讲,事业运会更差,不仅在职场上有所压抑,发挥不出自己的能力,还会受到上级的管制约束,令精神压抑,导致身心疲惫,压力重重。
正所谓“有病亦有药”,虽然现在楼房的格局我们没有办法自行改变,但是还有另外的趋吉避凶之术,下面我来告诉大家一个最有利的、又最容易实现化解方法。

化解不利之一,正东方的缺陷:
在玄关处摆放麒麟一对、泰山石一块。
麒麟是化解动荡、化煞助宅之用;而泰山石为填石专制。在有缺陷之地,摆放这两种吉祥物可化解不利,但这两种吉祥物必须要经过开光加持,方能增加其灵力,还要选择有利的摆放时间才可达到最好效果。如果麒麟摆放的好,便为吉祥之物,如果摆放的位置和方法不对,则会滋生一系列不利之事,这吉祥之物就变为不祥之物,泰山石也是如此。

调整后的户型
化解不利之二,西北角缺陷:
在西北阳台处,要摆放高约40公分以上的泰山石才可化解。泰山石为土的精华,自古既有重于泰山之说更何况其又有五岳之尊的称号,借用泰山石填石补空之力,来化解利因素。同样在摆放时要注意摆放的时间和摆放的斜度,不可任意摆放,更要结合家中主人的命理来分析,方能达到最有力的效果。